Cookies wymagane do prawidłowego wyświetlania i działania strony.
Nałęczów – 70,94 m² | 2 pokoje + balkon | Bez prowizji
Opis mieszkania
Na sprzedaż wyjątkowe mieszkanie o powierzchni 70,94 m², położone przy ul. Nowickiego 2 w samym sercu Nałęczowa – zaledwie 5 minut spacerem od Parku Zdrojowego.
Oferta bez pośredników – bez prowizji!
To idealna propozycja dla osób poszukujących spokojnego miejsca do życia w uzdrowiskowym klimacie lub inwestorów szukających nieruchomości o dużym potencjale wynajmu w jednej z najpiękniejszych miejscowości Lubelszczyzny.
Mieszkanie znajduje się na 3. piętrze w kameralnym, 3-piętrowym budynku z 1991 roku.
Funkcjonalny układ i pełna separacja pomieszczeń zapewniają komfort i prywatność.
Lokal jest w dobrym stanie technicznym – po remoncie w latach 90., gotowy do wprowadzenia lub lekkiego odświeżenia.
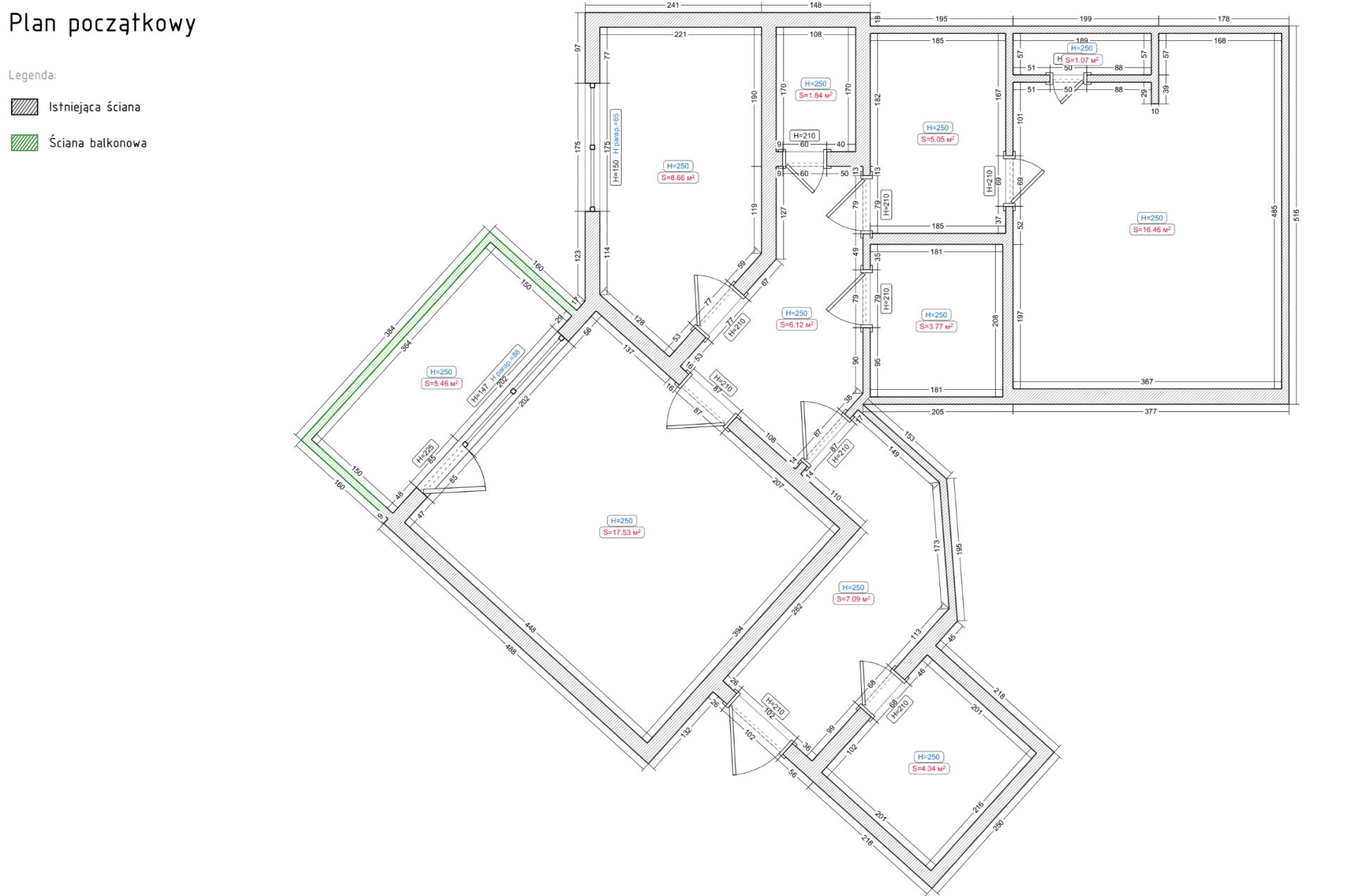
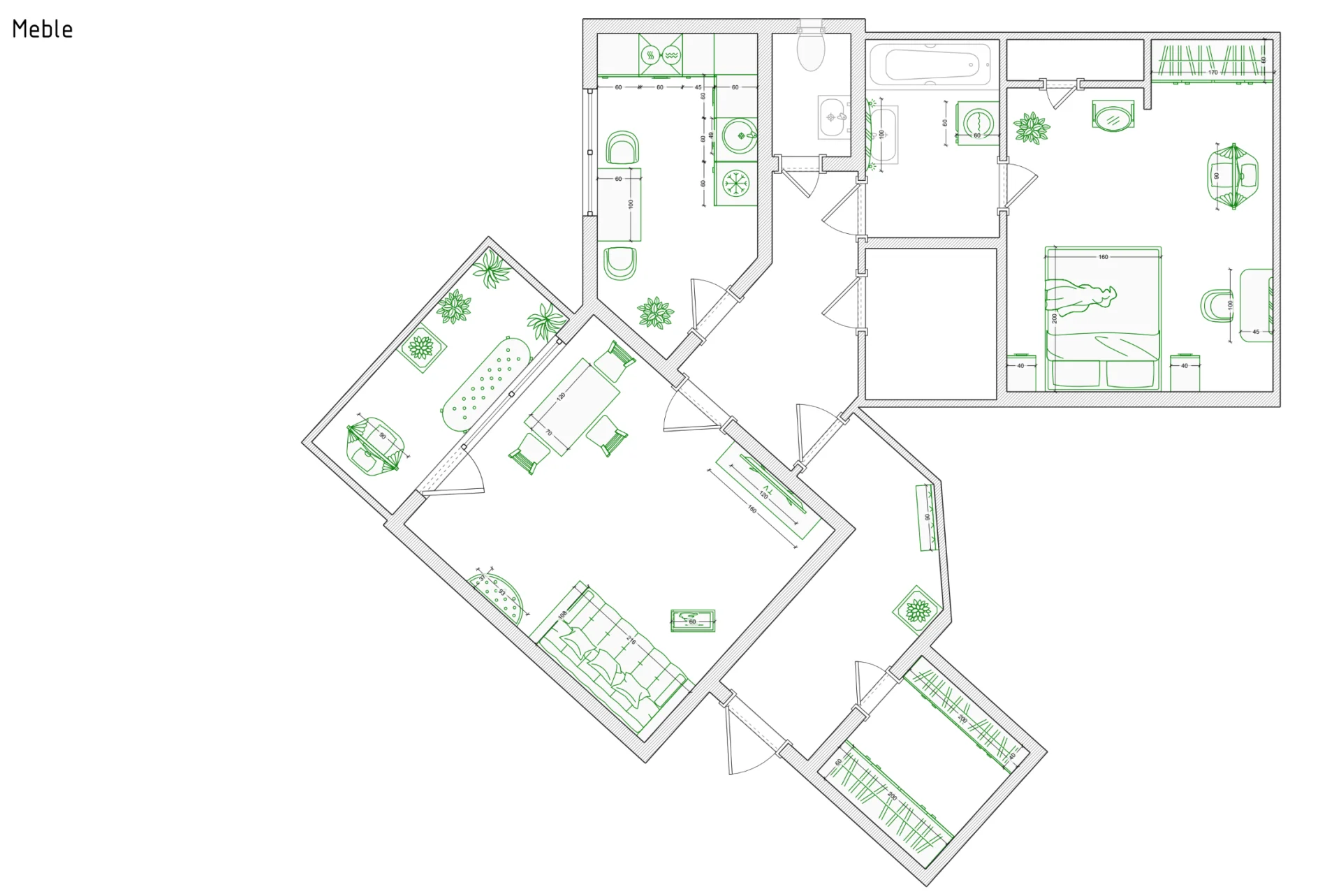
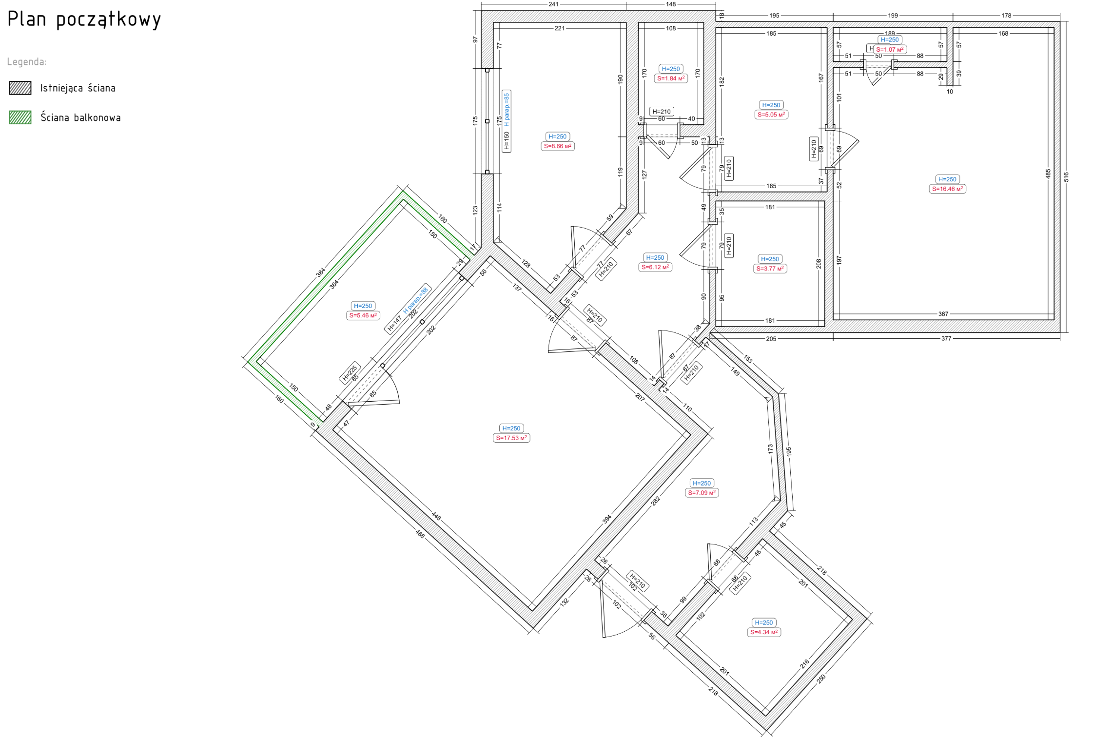
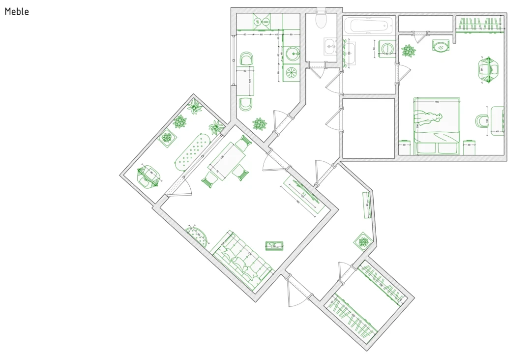
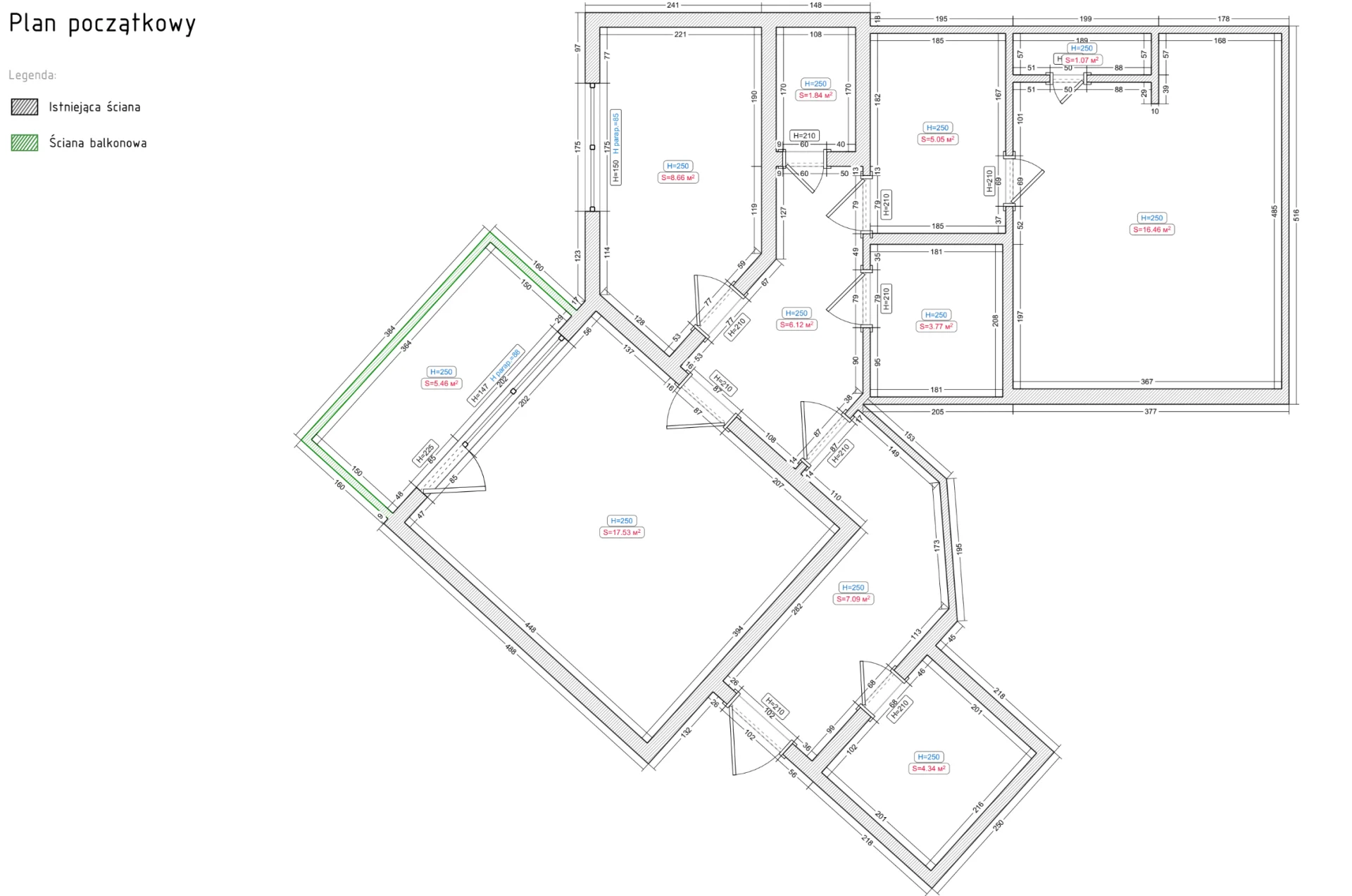
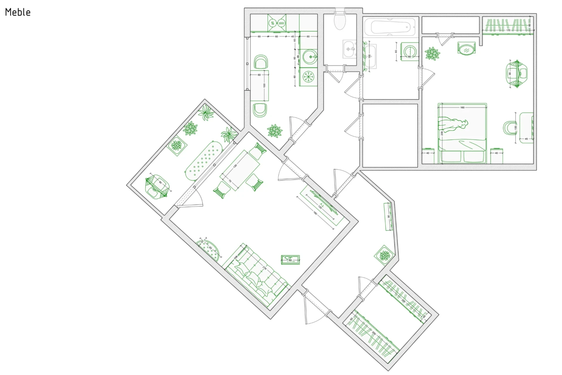
Układ pomieszczeń
przestronny salon z wyjściem na balkon z widokiem na zieleń,
osobna kuchnia,
sypialnia,
łazienka,
osobne WC,
garderoba bądź składzik/pomieszczenie gospodarcze.
Do mieszkania przynależy piwnica (3,6 m²).
Standard wykończenia
Mieszkanie do zamieszkania, w dobrym stanie technicznym
Wyremontowane w latach 90., zadbane, z zachowanym parkietem i stolarką PCV
Ogrzewanie miejskie, ciepła woda z piecyka gazowego
Czynsz ok. 900 zł/mies.
Lokalizacja
ul. Nowickiego 2, Nałęczów
Wyjątkowe położenie – centrum uzdrowiska, a jednocześnie cisza, spokój i dużo zieleni.
Zaledwie kilka minut spacerem dzieli Cię od najważniejszych atrakcji miasta:
Park Zdrojowy – serce Nałęczowa z alejkami, stawem i tężnią solankową
Pałac Małachowskich – XVIII-wieczna rezydencja z bogatą historią
Sanatorium Stare Łazienki i Książę Józef – zabytkowe budynki położone nad wodą
Dom Zdrojowy – z pijalnią wód mineralnych i palmiarnią
Muzeum Bolesława Prusa i Muzeum Stefana Żeromskiego – obowiązkowe punkty dla miłośników literatury
Kościół św. Karola Boromeusza – urokliwa kaplica w stylu zakopiańskim
Ulica Lipowa – z willami i ogrodami, idealna na spacery
Wąwóz Głowackiego – malownicza dolina spacerowa
Dodatkowo w niedalekiej okolicy warto odwiedzić:
Kazimierz Dolny (22 km), Puławy (22,3 km), Janowiec (22,5 km), Kozłówka (27,3 km) i Wojciechów (6,1 km) – wszystkie w zasięgu krótkiej wycieczki.
Atrakcje i udogodnienia
- Balkon z widokiem na zieleń
- Piwnica i garderoba
- Funkcjonalny układ pomieszczeń
- Bliskość Parku Zdrojowego i uzdrowiskowych atrakcji
- Cicha, kameralna okolica
- Mieszkanie gotowe do zamieszkania – bez prowizji
Dlaczego warto
Dla siebie:
Mieszkanie w uzdrowisku z wyjątkowym mikroklimatem
Blisko natury i atrakcji turystycznych
Gotowe do wprowadzenia – bez dodatkowych kosztów
Dla inwestora:
Doskonała lokalizacja pod wynajem dla kuracjuszy i turystów
Stabilny popyt – całoroczny ruch uzdrowiskowy
Nieruchomość z potencjałem wzrostu wartości
Lokalizacja
ul. Fortunata Nowickiego 2, 24-140 Nałęczów