Cookies wymagane do prawidłowego wyświetlania i działania strony.
Przestronne mieszkanie 4-pokojowe z potencjałem | Świętokrzyska 19, Lublin
Przytulne poddasze z dużą piwnicą. Świetna lokalizacja i funkcjonalny układ
Opis mieszkania
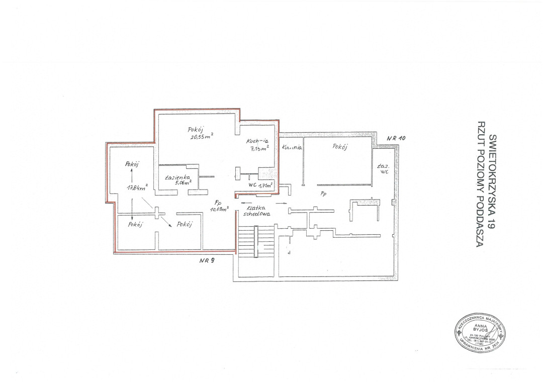
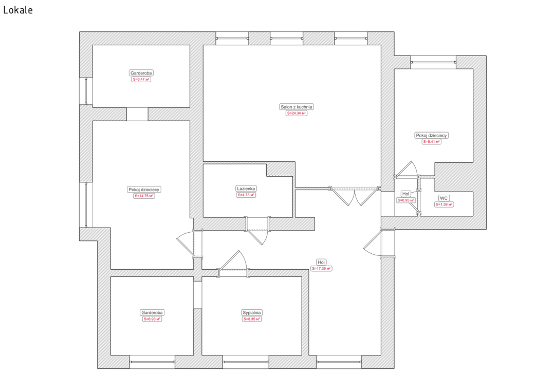
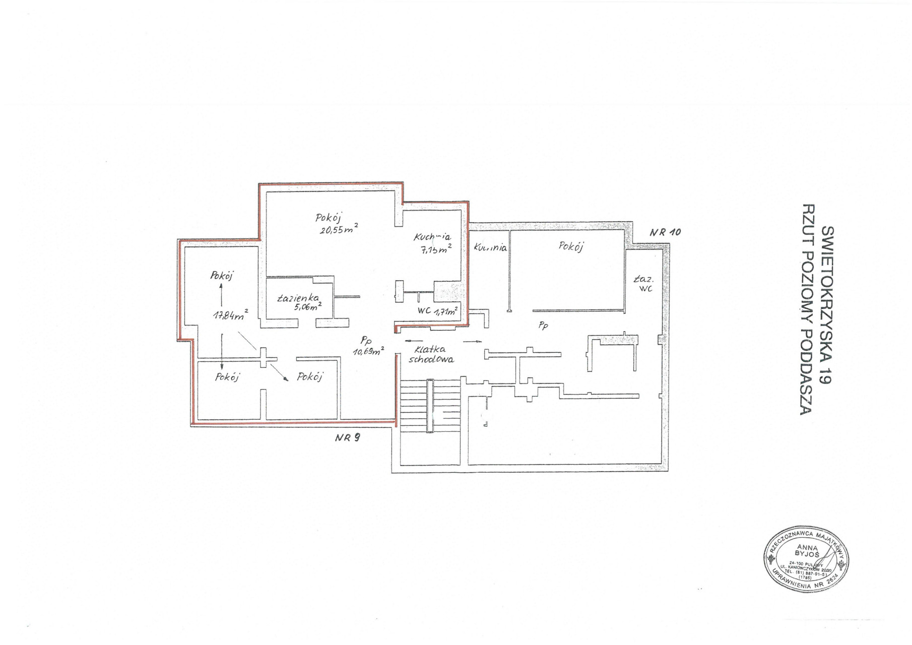
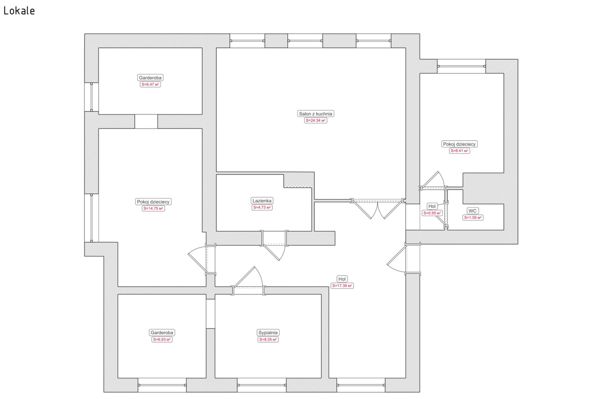
Na sprzedaż przestronny lokal mieszkalny położony na 4. piętrze (poddaszu) budynku przy ul. Świętokrzyskiej 19 w Lublinie. Powierzchnia użytkowa mieszkania, liczona bez skosów, wynosi 76,6 m², natomiast powierzchnia po podłodze wynosi 93,97 m². W księdze wieczystej widnieje powierzchnia 63 m². Wartość wpisana w KW jest błędna i niezgodna ze stanem faktycznym, dlatego dla pełnej przejrzystości podajemy wszystkie trzy powierzchnie. To idealna propozycja dla osób, które szukają funkcjonalnego mieszkania w spokojnej okolicy, a jednocześnie z szybkim dojazdem do centrum miasta.
Do lokalu przynależy piwnica o powierzchni 9,01 m², zapewniająca dodatkowe miejsce na przechowywanie.
Układ
Mieszkanie składa się z:
czterech pokoi z możliwością aranżacji sypialni, gabinetu, pokoju dziecięcego i przestronnego salonu z kuchnią,
2 garderób,
łazienki z miejscem na wannę lub prysznic,
oddzielnego WC,
korytarza z przestrzenią na zabudowę.
Układ mieszkania jest bardzo praktyczny - pozwala na wygodne użytkowanie przez rodzinę lub wynajem kilku niezależnych pokoi.
Standard wykończenia
Mieszkanie jest do remontu, co stanowi świetną okazję dla osób, które chcą stworzyć przestrzeń dopasowaną w 100% do swoich potrzeb i gustu. Dzięki solidnej konstrukcji budynku oraz przemyślanemu układowi pomieszczeń nowi właściciele mogą zaaranżować wnętrze według własnej wizji - od klasycznego, rodzinnego wystroju po nowoczesne studio z charakterem.
Lokalizacja
Nieruchomość znajduje się w doskonale skomunikowanej części Lublina – ul. Świętokrzyska 19:
400 m do sklepu spożywczego,
300 m do pediatry,
400 m do przedszkola,
170 m do placu zabaw i boiska,
ok. 1 km do szkół nr 43 i 16,
1 km do kościoła,
ok. 10 minut samochodem do centrum miasta,
1,5 km do Górki Czechowskiej – idealnej na spacery i aktywny wypoczynek,
1,5 km do Rodzinnego Ogródka Działkowego,
6 minut samochodem do centrum handlowego SKENDE.
Atrakcje i udogodnienia
Okolica sprzyja rodzinom z dziećmi, osobom aktywnym oraz tym, którzy cenią sobie spokój. W pobliżu znajdują się tereny zielone, ścieżki spacerowe i rekreacyjne, szkoły, sklepy, punkty usługowe oraz przystanki komunikacji miejskiej. To miejsce, w którym można cieszyć się codzienną wygodą.
Dlaczego warto
funkcjonalny układ czterech pokoi,
spokojna, zielona okolica z pełną infrastrukturą,
dobra komunikacja z centrum miasta,
duża piwnica w cenie,
mieszkanie z potencjałem aranżacyjnym – idealne dla rodziny lub inwestora pod wynajem.
To nieruchomość, która daje wiele możliwości - zarówno jako komfortowe miejsce do życia, jak i solidna inwestycja na przyszłość.
Lokalizacja
Świętokrzyska 19